Beazley River Academy
Paradise Creek Nature Park, Portsmouth, Virginia
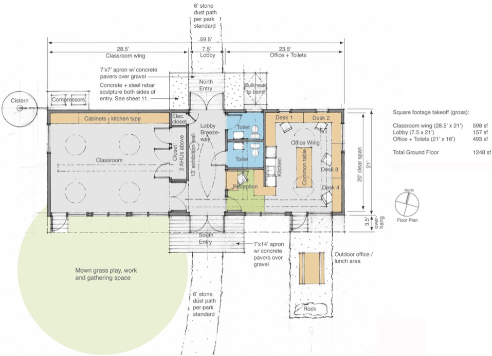
Located in a forest clearing at the Paradise Creek Nature Park, and within a larger landscape of massive industrial structures and the Portsmouth Naval Shipyard, the River Academy will containa public meeting and exhibition space, environmental education classroom, and offices. Crisman+Petrus Architects designed the building with integrated sustainable systems, including natural ventilation and daylighting, electricity generated by photovoltaic panels, rainwater collection and filtration, composting toilets, and a graywater treatment garden. We optimized solar income by orienting the building based on careful study of the erratic fall and spring climate of Portsmouth. RRMM Architects are the local architect of record. Construction began in July 2017 and completion is planned for spring 2018.
While a small structure with a small budget, this 1,200 square foot building will be open to the public and demonstrate a host of model building and operations practices:
• Building/site orientation takes advantage of prevailing natural breezes for ventilation
• Natural ventilation through strategic placement of operable windows
• Building oriented to optimize passive solar heating in winter, shading in summer
• Natural daylight to minimize electrical light use
• Solar panels provide all non-HVAC electrical power
• Composting toilets
• Rainwater harvesting for watering
• Best stormwater management practices (BMP)
• Renewables and recyclables used in construction
• Mimimum construction waste
• Non-VOC (volatile organic compound) materials used throughout
• Healthy work/play environment with maximized light, air, views and open atmosphere
• Native landscape plantings
Designed as a simple shed-type structure, the building opens to the south for ample light and solar gain to warm the concrete floor in the cold season. Strategiaclly placed operable windows and a pass-through circulation breezeway and exhibition space helps to cool the building without HVAC in temperate weather. Composting toilets are open to park visitors and the toilet rooms are naturally daylit.
The building becomes part of the park path system by opening the public corridor/exhibition space at both ends to allow the park path to cross through the building. Found boulders and tree stumps serve as benches for school groups to stop, listen and discuss what they are seeing and learning. Sustainable building elements are highlighted and used as architectural elements. For example, the metal composting shed and rainwater cistern flank the northern entrance to the building.







The building was carefully designed to operate in the particular maritime climate of Portsmouth, where Spring and Fall seasons can swing quickly from very cold to very hot on a day-to-day basis. Building orientation to the sun, prevailing breezes, and the use of operable shading allow the building and its occupants to adapt to daily climate.
