Liminal Shanghai: Wetland Biome Basins
Shanghai, PRC
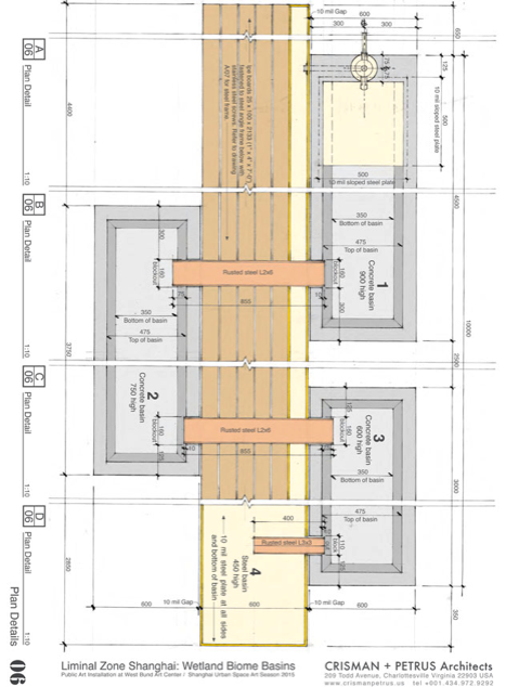
Located in the entrance plaza of the West Bund Art Center in Shanghai, this interactive, permanent public art installation viscerally engages visitors in the dynamic cycle of native plant wetland filtration. Commissioned by the 2015 Shanghai Urban Space & Art Season, Crisman+Petrus Architects designed a series of linear constructed wetland basins that create a place to learn, refresh, and conceptually connect with the nearby Huangpu River. Visitors manually pump water through interconnected, stepped concrete basins with native plants that oxygenate the water, absorb contaminants, and reduce suspended sediment. A heightened awareness and appreciation of Shanghai's remaining wetlands emerge as residents experience the regenerative actions of this living landscape and art installation.




